Product Center
It is suitable for the pipe system with the medium fresh water, air & other gas, oil and steam with the temperature not over 300 centigrade degree.
Design Standard: JIS F7319-1996
Test Standard: JIS 7400-1996
Hydraulic Test Pressure: Body-2.1Mpa, Seat-1.54Mpa
Flange size as per JIS B2220 -10K
![]()
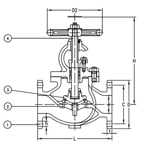
Main Material:
1-Body:Cast Steel (SC480)
2-Seat: Bronze (BC6) or Stainless Steel (2Cr13, SCS2)
3-Disc: Bronze (BC6) or Stainless Steel (2Cr13, SCS2)
4-Stem: C3771BD (Brass) or SUS403
5-Bonnet: Cast Steel (SC480)
6-Handwheel: Cast Iron (FC200)
7-Packing Gland: Bronze (BC6) or Stainless Steel (2Cr13)
8-Gasket: non-asbestos
Main Size List(mm):
IMPA CODE | Size | L | D | C | t | No of bolt hole | h | H | D2 | Weight(kgs) |
750411 | 50 | 220 | 155 | 120 | 16 | 4 | 19 | 270 | 160 | 17.9 |
750412 | 65 | 270 | 175 | 140 | 18 | 4 | 19 | 300 | 200 | 26 |
750413 | 80 | 300 | 185 | 150 | 18 | 8 | 19 | 310 | 200 | 29.8 |
750414 | 100 | 350 | 210 | 175 | 18 | 8 | 19 | 355 | 250 | 44.7 |
750415 | 125 | 420 | 250 | 210 | 20 | 8 | 23 | 415 | 280 | 70.3 |
750416 | 150 | 490 | 280 | 240 | 22 | 8 | 23 | 470 | 315 | 96.4 |
750417 | 200 | 570 | 330 | 290 | 22 | 12 | 23 | 565 | 355 | 159 |
750418 | 250 | 740 | 400 | 355 | 24 | 12 | 25 | 645 | 400 | 257 |
750419 | 300 | 840 | 445 | 400 | 24 | 16 | 25 | 735 | 450 | 370 |
